浙江新鸿防爆科技有限公司
关于我们
公司简介
企业文化
关于我们
公司简介
企业文化
产品中心
防爆电器系列
防爆灯具系列
防爆管件、工具
防爆风机、空调
防爆防腐系列
防爆其它系列
三防系列
产品中心
防爆电器系列
防爆灯具系列
防爆管件、工具
防爆风机、空调
防爆防腐系列
防爆其它系列
三防系列
新闻动态
企业新闻
行业动态
新闻动态
企业新闻
行业动态
下载中心
下载中心
产品应用
产品应用
联系我们
联系我们
产品展示
当前位置:
首页
产品中心
防爆灯具系列
防爆荧光灯
防爆电器系列
防爆灯具系列
防爆管件、工具
防爆风机、空调
防爆防腐系列
防爆其它系列
三防系列
防爆配电箱
防爆磁力启动器
防爆接线箱
防爆控制箱
防爆插销
防爆操作柱
防爆断路器
防爆正压柜
防爆自耦减压起动箱
防爆电缆盘
防爆开关、按钮
防爆变频器
防爆仪表
移动天燃气加气房专用防爆柜
LED高效节能灯具系列
防爆马路灯、高杆灯系列
移动式防爆灯LED系列
防爆灯系列
防爆荧光灯
防爆投光、泛光灯
防爆应急灯、标志灯系列
防爆警示灯
防爆软管
防爆穿线盒
防爆接线盒
防爆管接头
防爆填料函
防爆隔离密封盒
防爆胶泥
防爆轴流风机
防爆风扇
防爆排风扇
防爆吊扇
防爆空调
防爆冰柜
防爆不锈钢配电箱
防爆防腐接线箱
防爆防腐控制按钮
防爆防腐控制箱
防爆防腐操作柱
防爆防腐配电箱
防爆防腐照明开关
防爆防腐插接装置
防爆通讯设备
防爆监控设备
防爆电笛
防爆电铃
防爆时钟
防水防尘防腐灯
防水防防腐电源插座箱
防水防尘防腐控制箱
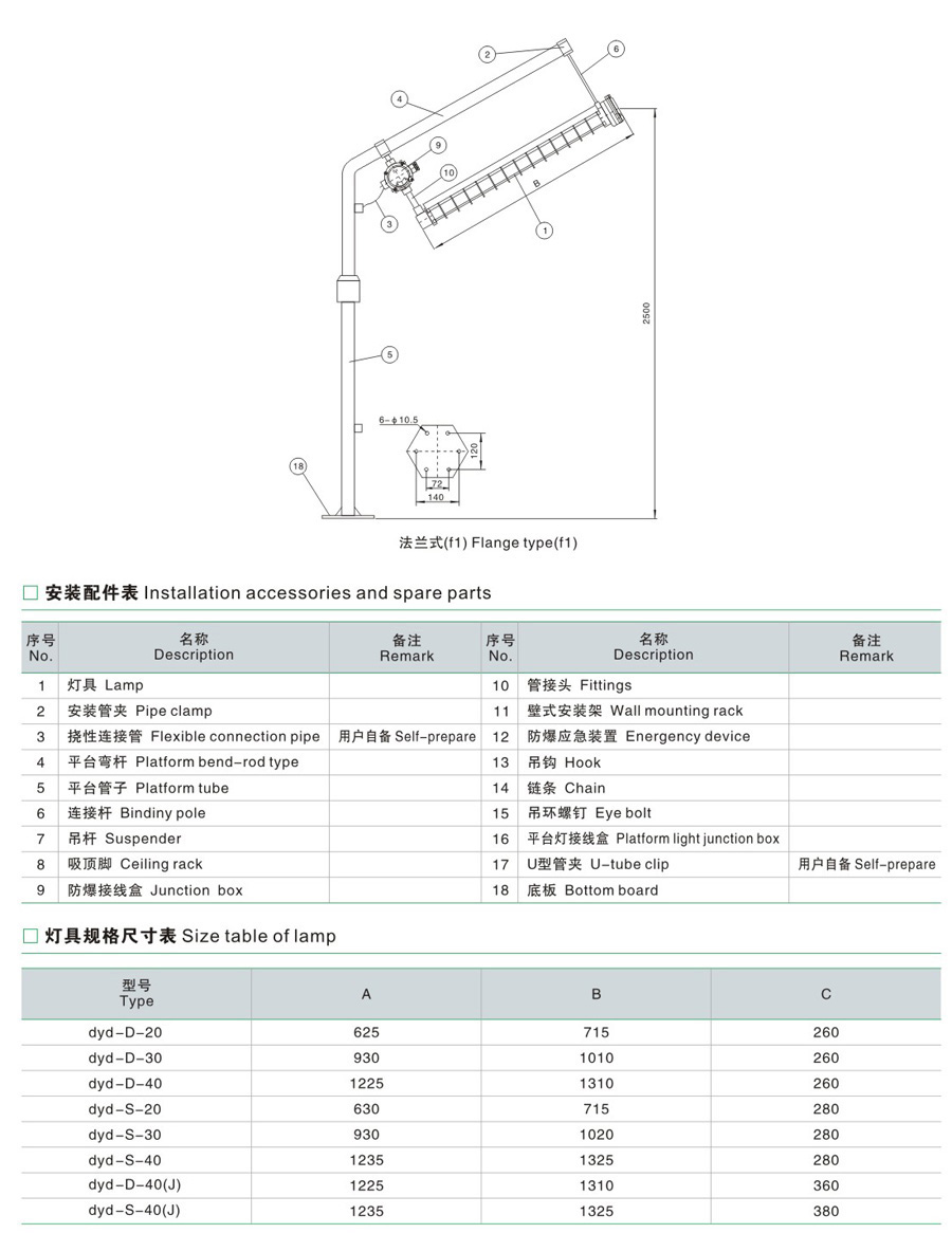
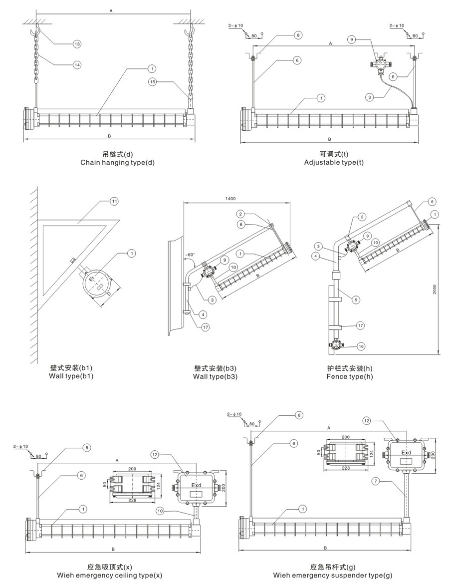
dyd1系列防爆荧光灯
产品详情
返回
上一个:BAD12-G系列不锈钢防爆灯
下一个:BYS-Q系列防爆防腐全塑荧光灯
相关产品
HYD8002系列防爆高效节能LED灯
BAD11-E-200L系列增安型防爆灯
BCF系列防爆排风扇
FGL-L系列防尘防腐灯
微信
咨询
微信-杨经理
微信
咨询
微信-罗经理
电话
咨询
15058376609
客服热线